德國工業(yè)4.0智造

  • 健康環(huán)保
  • 免費服務
  • 三年質保
  • 本地體驗
首頁 > 案例中心 > 現代 > 象牙海岸

象牙海岸 2687

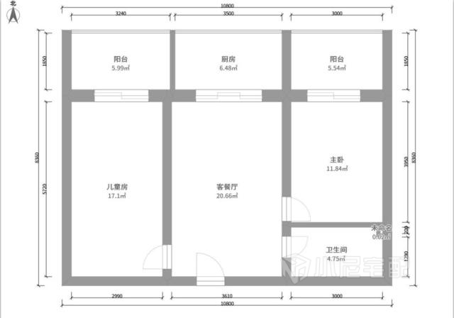
95㎡#兩室兩廳一衛(wèi)#現代

案例介紹
北京市 - 順義區(qū) 部隊家屬院


                       

戶型圖


                               

                               

                               

                               

                               

                               

                               

                               

                               

                               

                               

                               

                               
北京市-順義區(qū)
設計經驗4 作品12
  • 現代
  • 簡約
  • 硬裝設計
  • 軟裝配飾設計

免費申請設計

設計師上門服務全程免費,禁止以任何形式收取費用。

請輸入驗證碼

驗證碼輸入錯誤